■ 产品名称:高炉均压放散阀消声器
■ 结构形式:本系列消声器利用节流降压和小孔喷注两种消声机理,采用多级减压管逐级减压形式,通过适当的结构组合,制成具有宽频带消声的复合式消声器。
■ 用途:适用锅炉排气放空消声,以可以用于其它气体。(如空气、过热蒸汽、饱和蒸汽和蒸汽、氮、氧等)以及各种空压机、鼓风机等多余气体的排放消声。
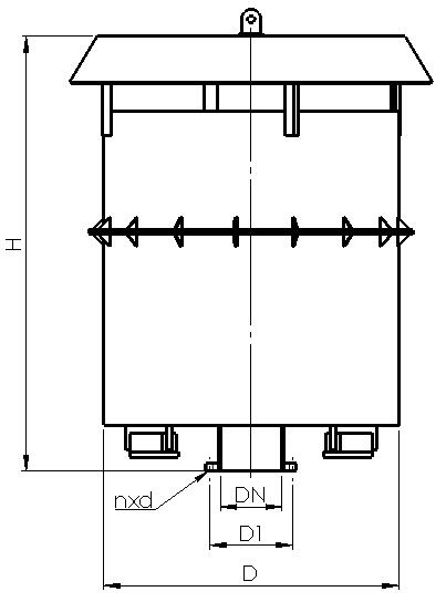
■ 型号及尺寸
DN | D | D1 | nxd | H |
150 | 1000 | 225 | 8X18 | 1400 |
200 | 1200 | 280 | 8X18 | 1600 |
300 | 1500 | 395 | 12X22 | 1800 |
注:非标尺寸可以根据用户的需求特定。
